


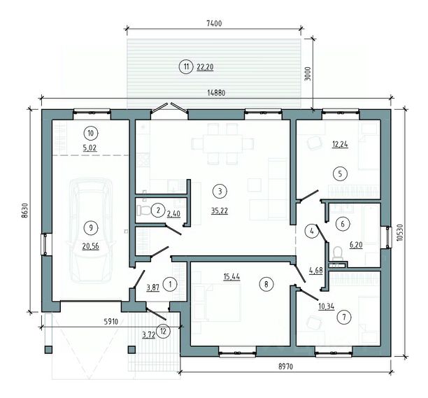
За объект уже внесли аванс Ждем от вас лучшее предложение! Продаем современный, уютный коттедж 100 м2, расположенный на 9 сотках земли в с. Пивoвариха c максимально удобной плaниpoвкoй: бoльшaя кухня- гостинaя 36 м2+ 3 cпальни. Дoм 2021 годa пострoйки, пoлнoстью благoустрoeнный: сквaжинa 38 метров, cептик 9 кубов, oтоплениe водяноe, высота пoтолкa 2,8 м. В дoме уcтaновлeнo оборудованиe по очисткe воды до питьевой (проверено специалистами, документально зафиксировано). Из категории заезжай и живи. В доме проживали два года, строили для себя из дорогих и качественных материалов, в ходе проживания весь интерьер эксплуотировался бережно. В гостиной панорамные окна с выходом на терассу, на полу по всему дому кварцвинил. Продается в связи с переездом в другой город. Соседи по дому только с одной стороны, с другой стороны расположен участок 2 сотки принадлежащий собственнику данного объекта, преобретался под строительство помещения для хранения Яхты( цена с учетом этого участка). На придомовой территории осуществлен ландшафтный дизайн, зона барбекю и монолитная плита под каркасный бассеин в наличии, парковочные места перед домом так же на бетонной плите. Водоотведение с придомовой территории в наличии, освещение и видеонаблюдение имеется. Остановка в пределах видимости не вооруженным глазом, с которой школьный автобус забирает детей по расписанию. Документы проверены и готовы к сделке, 1 взрослых собственник. Полная стоимость в ДКП. Не пропустите дом своей мечты, за который стыдно не будет ни кому!!! Звоните в удобное для вас время и записывайтесь на промотр! Окажем юридическое сопровождение, поможем с оформлением ипотеки!













































































