70 781 ₽/м²
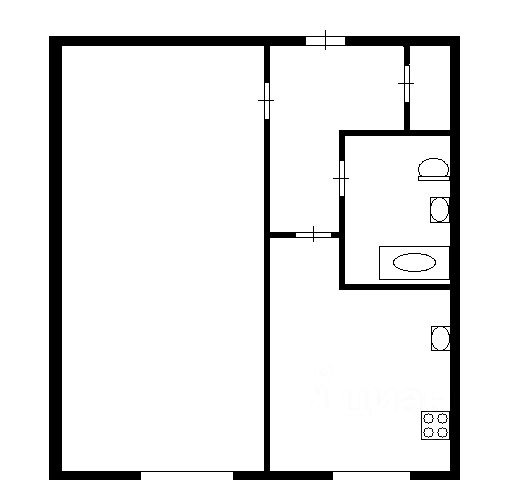
Предлагаем вашему вниманию уютную и тёплую 3-х комнатную квартиру с ремонтом и мебелью в г. Зима Не упустите возможность создать идеальное пространство для своей семьи в самом развитом районе города! Ключевые особенности: • Отличное состояние: Косметический ремонт в хорошем состоянии. Натяжные потолки, ковролин, пластиковые окна. • Готово к проживанию: остаётся вся мебель. Можно заезжать и жить. • Удобная планировка, все комнаты раздельные. Детали квартиры: • 1 этаж • Общая площадь: 64,0 кв.м. • Ремонт и отделка: Косметический ремонт, натяжные потолки, ковролин, металлическая входная дверь. • Окна и лоджия: Пластиковые окна. Лоджия застеклена раздвижными металлоконструкциями. • Санузел: Раздельный, отделка панели ПВХ, в ванной комнате большая душевая кабина. • Подключен Wi-Fi. Выгодное расположение (развитый район): • Детские сады и школа в шаговой доступности. • Магазины, остановки общественного транспорта, пункты выдачи Ozon и Wildberries рядом. Возможна продажа без мебели (в этом случае цена составит 4230000 рублей) Условия покупки: рассматриваются различные варианты — наличный расчёт, ипотека, жилищные сертификаты, материнский капитал. Квартира в микрорайоне Ангарский в городе Зима.


















































