116 525 ₽/м²
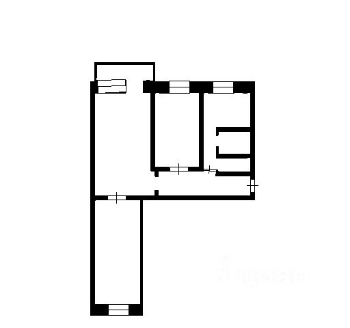
Уважаемые покупатели! Предлагаем вашему вниманию уютную 2-х комнатную квартиру в качественном современном ремонте. За счет объединения кухни и одной из комнат, увеличена зона приготовления и приема пищи, что добавит дополнительного комфорта вашей дружной семье. Перепланировка узаконена. Квартира находится в одном из самых развитых районов нашего города, а именно, в 11 мкр, дом 7. Расположена на 9 этаже 9-ти этажного дома, откуда открывается замечательный вид. Дом кирпичный. Стены, толщиной 60 см., сохраняют тепло зимой, а в жаркие летние месяцы в квартире комфортно за счет приятной прохлады. Квартира в современном качественном ремонте, чистая и уютная, светлые тона в отделке добавляют визуального пространства вашему будущему гнездышку. Проделана работа по замене проводки на медь, заменена сантехника, установлены качественные радиаторы, натяжные потолки по всей квартире, полы в стяжке, окна пластик. Все это будет являться неоспоримым преимуществом для нового собственника. Остается абсолютно вся мебель и техника! Санузел совмещенный, отделан качественными панелями с красивым рисунком, установлены счетчики на воду. Рядом с домом находится очень развитая инфраструктура, а именно, аптеки, магазины, парикмахерские, детский сад, школа, все это в шаговой доступности. Хороший двор, оборудована замечательная детская площадка, имеется достаточное количество парковочных мест. Остановки общественного транспорта, маршрутное такси доставит вас в любой район города. Замечательная семейная энергетика этой квартиры создаст теплую и уютную атмосферу новым собственникам для проживания в ней. Свободная продажа. С удовольствием расскажу про данный объект и покажу его Вам! _________________________________ Помогаем с одобрением ипотеки с пониженными процентными ставками. Доп. описание: санузел раздельный, пластиковые окна, в доме есть: детская площадка, открытый двор, наземный паркинг, лифт пассажирский, современный ремонт, также имеются: телефон, интернет, кабельное телевидение, счетчики холодной и горячей воды, домофон, железная дверь Код пользователя: 182932 Номер в базе: 6918988 Продам квартиру в микрорайоне 11-й в городе Ангарск.




































































