Мы используем куки-файлы. Соглашение об использовании
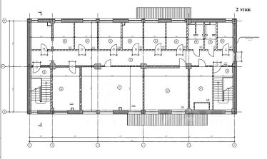
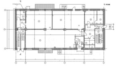
Площадь1 058,78 м²
Этажность2
Отличное предложение для инвестирования и бизнеса. Продается имущественный комплекс в одной из самых оживленных административно-торговой локации города. Адрес: улица Красных Мадьяр, 60 Местоположение: напротив рынок Новый, МТЦ Новый, ТЦ Иркутский В состав предложения входит: 1. Административное здание площадь 864,88 кв.м., этажность: 2 этажа и подвал год постройки: 2008 кадастровый номер: 38:36:000021:27390 право собственности: 28.07.2008 2. Здание (гаражный бокс) площадь 193,9 кв.м. количество этажей: 1 год постройки: 2003 кадастровый номер: 38:36:000021:8082, 2 въездных ворот h - 3 m смотровые ямы право собственности: 15.12.2003 3. Земельный участок, категория земель: земли населенных пунктов, виды разрешенного использования: Для эксплуатации административного и производственного зданий, гаража, площадь 12,92 сотки кадастровый номер: 38:36:000021:24452, расположен в зоне: ОДЗ-201 зоны делового, общественного и коммерческого назначения. право собственности: 15.10.2013 ГПЗУ получен Технические характеристики административного здания Высота помещений: 1 этаж: 3,1 м 2 этаж: 3,1 м Цоколь: 2,4 м Здание каркасное, выполненное в монолитных железобетонных конструкциях, по рамной схеме. Фундамент выполнен в виде ребристой монолитной железобетонной плиты с ребрами вниз. Колонны каркаса сплошные монолитные железобетонные. Междуэтажные и чердачное перекрытия ребристые монолитные железобетонные. Междуэтажные лестницы двухмаршевые, выполненные в монолитных железобетонных конструкциях. Наружные стены многослойные: пенополистерольные блоки, кладка из блоков утеплена минераловатным утеплителем и закрыта навесным вентилируемым фасадом из металлических панелей (сайдинг). Перегородки кирпичные и из листов ГКЛ по металлическим направляющим Кровля - Профилированный металлический лист Водоснабжение: центральное Канализация: центральная Отопление: бойлер (получены и оплачены тех условия на подключение к центральным сетям, тепловой луч проведен до стен здания) Выделенная мощность: 250 кВт Состояние: В 2022 году выполнен капитальный ремонт внутри здания, фасада, крыши. Полы выровнены. Заменены окна и двери Все отделочные работы проведены в соответствии с требованиями СП Автоматические ворота на въезде на территорию, установлен шлагбаум. Технические характеристики гаражного бокса Высота помещений: 4,18 м Фундамент бетонный Стены кирпичные. Полы бетонные Междуэтажные перекрытия железобетонные.
lock

Войдите или зарегистрируйтесь
для просмотра информации

Просматривайте условия сделки и всю информацию об объекте
Сохраняйте фильтры в поиске и не вводите заново
Доступ к избранному с любого устройства
Неограниченное добавление в избранное
Позвоните автору
Вам ответят на все вопросы
Остались вопросы по объявлению?
Позвоните владельцу объявления и уточните необходимую информацию.
  • Инфраструктура
  • Похожие рядом
Автономное отопление
Помощь надёжных риелторов
Риелтор партнёр Циан поможет купить или продать любую недвижимость
84 575 000 ₽
1 124 115 $
956 981
Цена за метр
79 880 ₽
Налог
УСН
Агентство недвижимости
Суперагент