145 000 ₽/м²
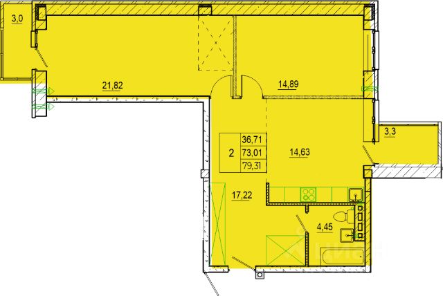
Продаётся 1-комнатная квартира в сданном доме (Дом 2 (БС 4)), срок сдачи: I-кв. 2024, общей площадью 33.74 кв.м., на 1 этаже. Благодаря своему месторасположению, микрорайон "Современник" имеет развитую внешнюю инфраструктуру. На территории микрорайона расположен остановочный пункт, есть собственный маршрут, на котором жители могут добраться в центр города. Открыты магазины. В центре Микрорайона "Современник" планируется строительство школы и детского сада. Внутренний двор ориентирован на людей, а не на машины: проезд автомобилей строго запрещен. Вы можете не беспокоиться за детей, играющих на детской площадке. Все автомобили паркуются на открытых парковках, расположенных на внешней территории. Также мы уделяем большое внимание детским и спортивным площадкам, которые так привлекают и маленьких и взрослых жителей микрорайона "Современник". Двор разделен по интересам и возрастам - детские площадки для малышей и ребят постарше, площадки для занятия спортом и активных игр, уютная зона для отдыха взрослых жителей, зеленые зоны и места для мамочек с колясками - мы всегда продумываем каждую деталь наших дворов!
















































































