


176 843 ₽/м²
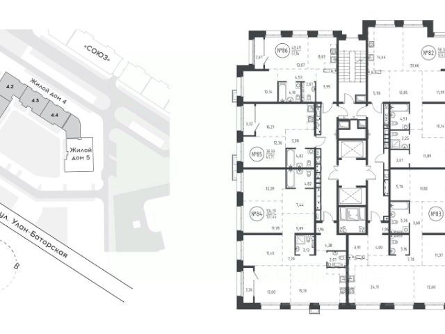
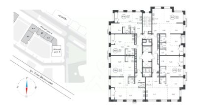
ЖИЛЫЕ КВАРТАЛЫ СОЮЗ PRIORITY — уникальный проект с приватным дворовым пространством, подземным паркингом, соседским центром, собственным плеихабом и развитои инфраструктурои в сердце Свердловского района города Иркутска. Уникальность ЖИЛЫХ КВАРТАЛОВ заключена в благоустройстве совершенно нового уровня: собственный сквер, березовая роща, пешеходная аллея, концептуальное игровое пространство для детей всех возрастов. Проектом предусмотрены помещения под магазины и кафе, что создает новый уровень комфорта вашей жизни. СОЮЗ PRIORITY - новый центр, новый мир, предполагающий революционный подход к современному дому. ЖИЛЫХ КВАРТАЛАХ СОЮЗ PRIORITY представлено более 20 планировочных решений площадью от 27 до 115 кв.м для разных сценариев жизни. Если вы не настроены заниматься трудозатратными, пыльными и сложными работами в будущем жилье, то идеальным решением для вас станет приобретение квартиры с белой отделкой или, как еще говорят, отделкой white box. Такой вариант отделки снимает с собственника жилья необходимость погружаться в ремонтно-строительную тему, но оставляет место для творчества и реализации дизайнерских идей. К тому же значительно сокращает срок от момента получения ключей до возможности заехать в новый дом. В этот вариант отделки от ГРАНДСТРОЙ входит следующее: выполнена качественная стяжка пола; выполнена гидроизоляция в санузле; установлены межкомнатные перегородки; выровнены, оштукатурены и отшпаклеваны стены; потолок выровнен сухими смесями; выполнена электрика в соответствии с проектом; установлены радиаторы с выводами из стены; установлены счетчики; установлены высоклассные окна с системой фильтрации и вентиляции; изготовлены и смонтированы подоконники и откосы из пластика. установлена качественная взломостойкая входная дверь. *Цена актуальна при условии 100% оплаты или с помощью обычной (не субсидированной) ипотеки.





































































































