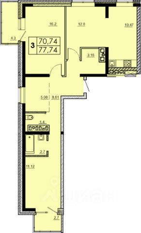
101 812 ₽/м²
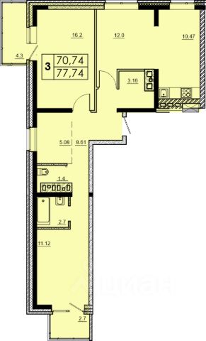
Продаётся 3-комнатная квартира в сданном доме ( Баумана, 271 (Дом 4 БС 16)), срок сдачи: III-кв. 2025, общей площадью 76.14 кв.м., на 13 этаже. Новый жилой комплекс "Мега" от застройщика "ФСК Домстрой" расположен по адресу: Россия, Иркутск, переулок Археолога Михаила Герасимова.















































