


165 000 ₽/м²
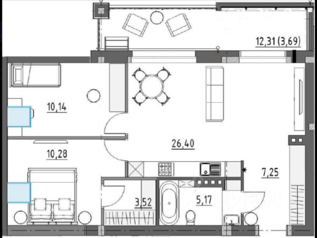
Продаётся 3-комнатная квартира в сданном доме (квартал Стрижи, 17 (Блок-секция 7)), срок сдачи: III-кв. 2025, общей площадью 75.3 кв.м., на 9 этаже. ЖК "Квартал Стрижи" - продолжение известного ЖК Стрижи "с птичками". Мы продолжаем развивать территорию квартала и его инфраструктуру. Все квартиры и офисы "Квартала Стрижи" будут реализовываться в готовом формате с различной отделкой. Первая очередь строительства ЖК "Квартал Стрижи" представляет собой две монолитно-кирпичные блок-секции. Первая блок-секция 20-этажная, в ней расположатся 207 квартир. Вторая блок-секция 15-этажная, в ней спроектировано 149 квартир. Квартирография представлена 1-,2-,3-комнатными квартирами от 25 до 123 кв.м. Жилой комплекс "Квартал Стрижи" строится рядом с ЖК "Стрижи" в Маркова, в районе с благоприятной экологией. Из окон квартир будет открываться красивый панорамный вид на город и природный ландшафт.




















































































































