


145 000 ₽/м²
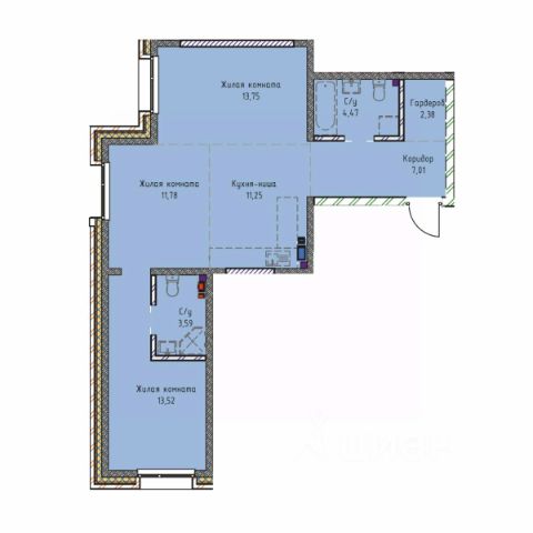
Микрорайон "Радужный" — тишина, комфорт и настоящий семейный уют Если вы устали от многоэтажных "человейников" и плотной застройки — обратите внимание на микрорайон "Радужный". Здесь вы найдете пространство, свет и покой, которых так не хватает в городе. ________________________________________ Малоэтажный дом — всего 5 этажей (4 жилых этажа, а также кладовые на -1 этаже) Современный лифт в каждом подъезде — комфорт без компромиссов Тихий, малолюдный район вдали от магистралей Просторные дворы, зелёные зоны, отсутствие тесноты В доме — всего 79 квартир, часть уже забронирована Лот: 3 этаж, площадь — 62,4 м² ________________________________________ Строительство ведётся по 214-ФЗ, сдача — 1 квартал 2027 года Квартиры с предчистовой отделкой — свобода для вашего интерьера В шаговой доступности: — Строящиеся школа и детский сад (всего 3 минуты пешком) — Спортклубы, супермаркеты, аптеки, развивающие центры для детей — Всё необходимое для комфортной и полноценной жизни ________________________________________ Условия покупки и формы оплаты: Кредит от Сбербанка по ставке от 3,5% Семейная ипотека, ипотека под залог недвижимости (от 13%) Беспроцентная рассрочка платежа Наличный и безналичный расчёт Дистанционное оформление — покупка возможна без визита ________________________________________ Звоните — расскажем о планировках, рассчитаем условия и подберём квартиру под ваш бюджет Микрорайон "Радужный" — малоэтажное спокойствие в динамичном городе. Место, где действительно хочется жить. Продам 3-комнатную квартиру до 18 млн. рублей в Иркутске.


























































































































































