Мы используем куки-файлы. Соглашение об использовании

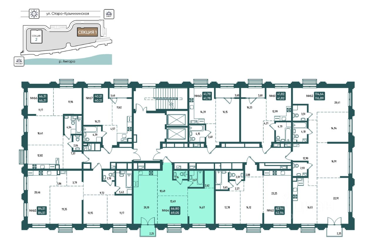
Продается 2-комн. квартира, 69,01 м²

Общая площадь69,01 м²
Жилая площадь28,2 м²
Площадь кухни20,1 м²
Этаж9 из 20
Год сдачи2027
ДомНе сдан
ОтделкаБез отделки
Дом бизнес-класса БРОДСКИЙ обладает завораживающими видами на реку и город, удобную локацию, сочетающую максимум приватности и одновременно превосходную транспортную доступность, выразительную архитектуру и продуманные до мелочей дизайнерские места общего доступа. Смотровая площадка на крыше только для резидентов дома "БРОДСКИЙ", продуманный двор с многоуровневым озеленением и уютными зонами отдыха и видовыми площадками с дзен-пространством. Разноформатность зон отдыха подходит для неспешных прогулок и дружеских разговоров в приватных зонах с видом на реку. Мы отделили детскую зону и вынесли за пределы двора шумные спортивные площадки, для того чтобы все способствовало максимально комфортному отдыху. Ощущение приватности и собственной исключительности на каждом шагу! Более 80% квартир дома БРОДСКИЙ могут похвастаться захватывающими видами на реку Ангару! Дом бизнес-класса БРОДСКИЙ это: Развитая инфраструктура Исторически сложившийся интеллигентный, академический облик жителей района Благоприятная экологическая обстановка Транспортная и пешеходная доступность Динамический пульс города и комфорт приватной жизни Выразительная архитектура Терраса на крыше Закрытый двор Умные технологии Внимание к важным мелочам отдельные колясочные и велосипедные Свобода личного и квартирного пространства, благодаря просторным кладовым. 25 Квартир с эксклюзивными планировками: французский балкон пентхаус терраса окна с радиальным остеклением До 3.9 м - высота потолков в квартирах БРОДСКИЙ.

О квартире

Тип жилья

Новостройка

Общая площадь

69,01 м²

Жилая площадь

28,2 м²

Площадь кухни

20,1 м²

Высота потолков

2,88 м

Санузел

2 раздельных

Балкон/лоджия

1 балкон

Отделка

Без отделки

О доме

Количество лифтов

2 грузовых

Тип дома

Монолитный

Понравилась квартира — узнайте о ней больше

Застройщик ответит на все вопросы

Отделка в ЖК

  • Без отделки
Похоже на то, что вы ищете?

Акции в ЖК «БРОДСКИЙ»

Узнайте про персональные условия и дополнительные скидки при покупке квартиры у застройщика
Ипотечный калькулятор
  • Базовая
  • Семейная
  • ИТ-ипотека
  • 20%
  • 30%
  • 40%
  • 50%
лет
  • 10 лет
  • 20 лет
  • 30 лет
Загружаем предложения от застройщика и банков

Расположение

Корпус проверен наш.дом.рф
Обновлено 23 апреля 2026
  • Нет в реестре проблемных объектов
  • Застройщик не банкрот
  • Есть эскроу счёт
  • Актуальные фото стройки

Ещё квартиры в жилом комплексе

121 квартира в продаже · Сдача в 2 кв. 2027
Автор объявления

Застройщик «ГРАНДСТРОЙ»

Надежный застройщик
Строительная компания «ГРАНДСТРОЙ» образована в 2005 году. Основное направление деятельности компании - реализация инвестиционных проектов в строительстве жилья, объектов социально-бытового и промышленного назначения. Все виды деятельности компании обл...
14 495 000 ₽
Цена за метр
210 042 ₽/м²
Условия сделки
свободная продажа