Мы используем куки-файлы. Соглашение об использовании
  • ВТБ
    ПСБ
    Совкомбанк
    Альфа-Банк
    Уралсиб
    Банк ДОМ.РФ
    Т-Банк
    МКБ
    Абсолют Банк
    Реальные ипотечные ставки от 9 банков - 5,75% на новостройки, 16,9% на вторичку
    Перейти в сервис
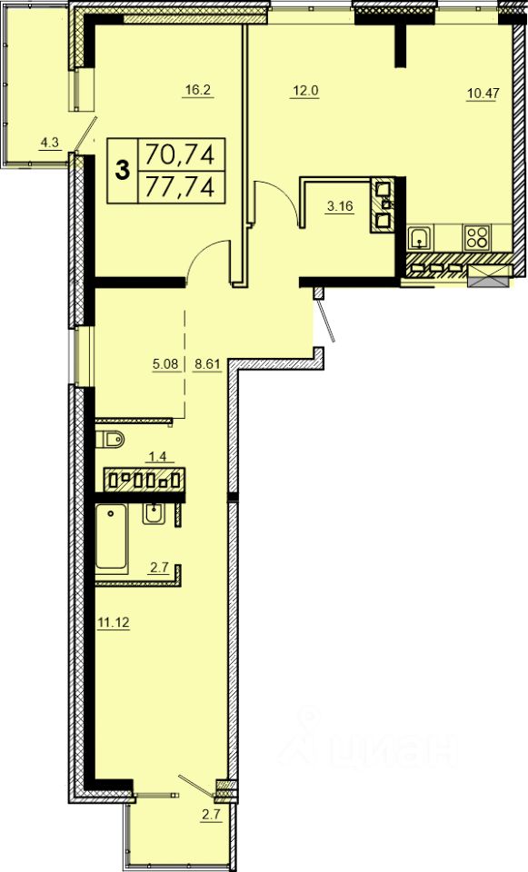
Общая площадь77,74 м²
Этаж14 из 18
Год сдачи2025
ДомСдан
Продаётся 3-комнатная квартира в сданном доме (Баумана, 271 (Дом 3 БС 15)), срок сдачи: III-кв. 2025, общей площадью 77.74 кв.м., на 14 этаже. Новый жилой комплекс "Мега" от застройщика "ФСК Домстрой" расположен по адресу: Россия, Иркутск, переулок Археолога Михаила Герасимова.

О квартире

Тип жилья

Новостройка

Общая площадь

77,74 м²

О доме

Пандус

Есть

Похоже на то, что вы ищете?
Ипотечный калькулятор
  • Базовая
  • Семейная
  • ИТ-ипотека
  • 20%
  • 30%
  • 40%
  • 50%
лет
  • 10 лет
  • 20 лет
  • 30 лет
Загружаем предложения от застройщика и банков

Расположение

Корпус проверен наш.дом.рф
Обновлено 9 октября 2025
  • Нет в реестре проблемных объектов
  • Застройщик не банкрот

Ещё квартиры в жилом комплексе

310 квартир в продаже · Сдача в 4 кв. 2026, есть сданные
Консультант
Циан
  • 6 лет на Циане
  • 25671 объявление
  • 8 058 000 ₽
    Цена за метр
    103 653 ₽/м²
    Условия сделки
    свободная продажа
    Консультант
    Циан