Мы используем куки-файлы. Соглашение об использовании
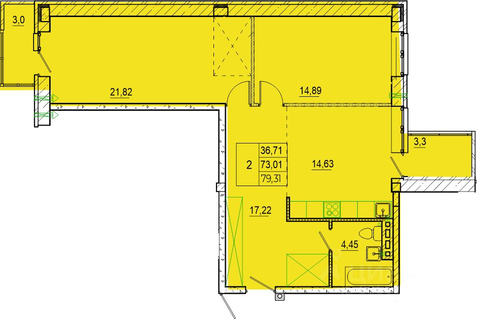
Общая площадь80,4 м²
Этаж2 из 4
Год сдачи2024
ДомСдан
Продаётся 2-комнатная квартира в сданном доме (Дом 2 (БС 5)), срок сдачи: I-кв. 2024, общей площадью 79.31 кв.м., на 2 этаже. Благодаря своему месторасположению, микрорайон "Современник" имеет развитую внешнюю инфраструктуру. На территории микрорайона расположен остановочный пункт, есть собственный маршрут, на котором жители могут добраться в центр города. Открыты магазины. В центре Микрорайона "Современник" планируется строительство школы и детского сада. Внутренний двор ориентирован на людей, а не на машины: проезд автомобилей строго запрещен. Вы можете не беспокоиться за детей, играющих на детской площадке. Все автомобили паркуются на открытых парковках, расположенных на внешней территории. Также мы уделяем большое внимание детским и спортивным площадкам, которые так привлекают и маленьких и взрослых жителей микрорайона "Современник". Двор разделен по интересам и возрастам - детские площадки для малышей и ребят постарше, площадки для занятия спортом и активных игр, уютная зона для отдыха взрослых жителей, зеленые зоны и места для мамочек с колясками - мы всегда продумываем каждую деталь наших дворов!

О квартире

Тип жилья

Новостройка

Общая площадь

80,4 м²

О доме

Тип дома

Кирпичный

Пандус

Есть

О ЖК «Лето»

  • Сдача комплекса
    Сдан
  • Застройщик
    ФСК Домстрой
  • Класс
    Комфорт
  • Тип дома
    Кирпичный
  • Парковка
    Гостевая
  • Отделка
    Предчистовая
  • Тип комплекса
    Жилой комплекс
Похоже на то, что вы ищете?

Особенности жилого комплекса

  • Отделка

  • Внутренний двор

  • Архитектура

  • Входная группа

  • Лифт

Подробнее о жилом комплексе
Ипотечный калькулятор
  • Базовая
  • Семейная
  • ИТ-ипотека
  • 20%
  • 30%
  • 40%
  • 50%
лет
  • 10 лет
  • 20 лет
  • 30 лет
Загружаем предложения от застройщика и банков

Расположение

Корпус проверен наш.дом.рф
Обновлено 23 февраля 2025
  • Нет в реестре проблемных объектов
  • Застройщик не банкрот

Ещё квартиры в жилом комплексе

140 квартир в продаже · Сдан
Консультант
Циан
  • 5 лет 11 месяцев на Циане
  • 39573 объявления
  • 11 658 000 ₽
    Цена за метр
    145 000 ₽/м²
    Условия сделки
    свободная продажа
    Консультант
    Циан