Мы используем куки-файлы. Соглашение об использовании
Площадь120,6 м²
Этаж1 из 5
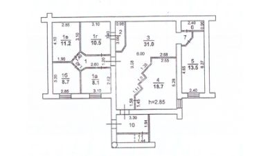
Арт. 134413848 Продаётся готовый коммерческий офис на цокольном этаже (120,6 м²). Главное преимущество — отдельная входная группа с улицы. Клиенты и сотрудники заходят напрямую, минуя общие подъезды, турникеты и лифты. Почему это выгодно для бизнеса: Свой вход = больше свободы Разместите яркую вывеску на фасаде, работайте после 20:00, принимайте клиентов в выходные. Круглосуточный доступ без согласований. Готовая планировка для бизнеса Помещение правильной формы. Уже есть всё необходимое: зона ресепшен, переговорная комната и отдельная зона отдыха. Можно использовать как есть или легко адаптировать под свои задачи. Климат под ключ Готовая приточная вентиляция, кондиционирование, полный климат-контроль. Комфорт выше стандартного цоколя По документам — цокольный этаж. Высокие потолки 3,17 м и естественное освещение делают его максимально приближенным к уровню первого этажа. Безопасность и парковка Внутреннее видеонаблюдение, пожарная и охранная сигнализация. Удобная парковка для клиентов и персонала. Идеально подойдёт под: собственный бизнес: юридическую / бухгалтерскую контору, рекламное агентство, сервисный центр, шоу-рум, учебные классы и любой бизнес, которому важны независимый график и статус отдельного входа; инвестиционный проект, как готовый арендный бизнес со сроком окупаемости 7,5 лет. Звоните, показываем в удобное время.
lock

Войдите или зарегистрируйтесь
для просмотра информации

Просматривайте условия сделки и всю информацию об объекте
Сохраняйте фильтры в поиске и не вводите заново
Доступ к избранному с любого устройства
Неограниченное добавление в избранное
Позвоните автору
Вам ответят на все вопросы
Остались вопросы по объявлению?
Позвоните владельцу объявления и уточните необходимую информацию.
  • Инфраструктура
  • Похожие рядом
  • Тип зданияЖилой дом
  • Общая площадь120,6 м²
Помощь надёжных риелторов
Риелтор партнёр Циан поможет купить или продать любую недвижимость
РиелторСамолет Плюс
Суперагент
17 000 000 ₽
227 594 $
194 080
Цена за метр
140 962 ₽
Налог
НДС включен: 3 065 573 ₽
Агентство недвижимости
На Циан
6 лет
Объектов в работе
103
Риелтор
Суперагент