107 810 ₽/м²
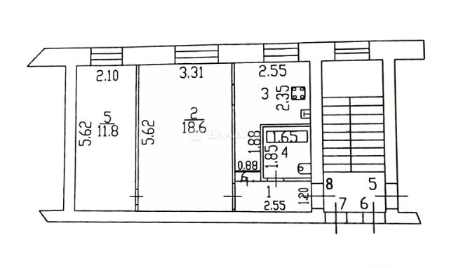
Код объекта: 2016840. Продается квартира с уникальной, полностью узаконенной перепланировкой в престижном Приморском районе, в кирпичном доме по адресу ул. Левитана, 16. Это редкий случай, когда грамотный дизайн-проект подарил стандартной площади функционал просторного жилья. Ключевые преимущества объекта: 4 КОМНАТЫ НА 58,9 кв.м. В результате продуманной и юридически чистjq перепланировки (все согласовано в БТИ , документы в наличии) получились четыре изолированные комнаты. Идеально для: Большой семьи — у каждого свой уголок. Совмещения жилья и работы — под кабинет, мастерскую, студию. Инвестиции — высокая доходность при сдаче комнат по отдельности. АБСОЛЮТНАЯ ЮРИДИЧЕСКАЯ ЧИСТОТА: Перепланировка утверждена всеми инстанциями. Никаких рисков b проблем с продажей. Можно оформить в ипотеку. Заезжайте и живите. Отличная локация и вид: Дом находится в тихом, зеленом районе, что гарантирует тишину, чистый воздух и приятный вид. Почему это выгодно? Вы платите за стоимость скромной площади, а получаете функциональность и комфорт квартиры значительно большей площади. Это умная инвестиция в недвижимость с высокой ликвидностью. Собственник продает квартиру по привлекательной цене для быстрой сделки. Показ в любое удобное для вас время, запись по указанному телефону. Уважаемые клиенты, в случае, если Вам не удалось дозвониться, мы с радостью ответим на Ваши сообщения. Наш саII-центр работает круглосуточно. 4-комнатная квартира на улице Левитана в городе Иркутск.















































































